Nuevo lanzamiento en Chamisero: exclusividad y diseño en un entorno natural
Precio de lanzamiento
Contácta con un ejecutivo
Proyecto
Pórtico
Chamisero
Dirección
Sergio Reiss 18.110
Chicureo.
Precio
Desde UF 9.990
Dormitorios
3
Baños
3
Metraje
150 m2 totales construidos
Unidades
22
Estado
Pre-venta
Pórtico Chamisero es un innovador proyecto inmobiliario ubicado en Chamisero, que redefine el concepto de vivir en condominio. Se compone de 22 casas distribuidas en 5 microcondominios de 4 casas y un exclusivo condominio de solo 2, ofreciendo un entorno más tranquilo, privado y seguro.
Las casas de 150 m2 totales construidos.cuentan con 3 dormitorios y 3 baños, con posibilidades de ampliación para adaptarse a distintas necesidades familiares. El diseño interior privilegia los espacios integrados y funcionales, con una distribución pensada para maximizar la amplitud y la conexión con el exterior.
Este proyecto en condominio cerrado combina arquitectura contemporánea, distribución eficiente y privacidad, creando un ambiente ideal para familias que buscan casas en Chamisero con un alto estándar de diseño y una nueva forma de vivir.
Actualmente en preventa exclusiva, Pórtico Chamisero está emplazado en uno de los sectores mejor conectados de Chamisero, con excelente accesibilidad a autopistas, colegios, servicios y naturaleza.














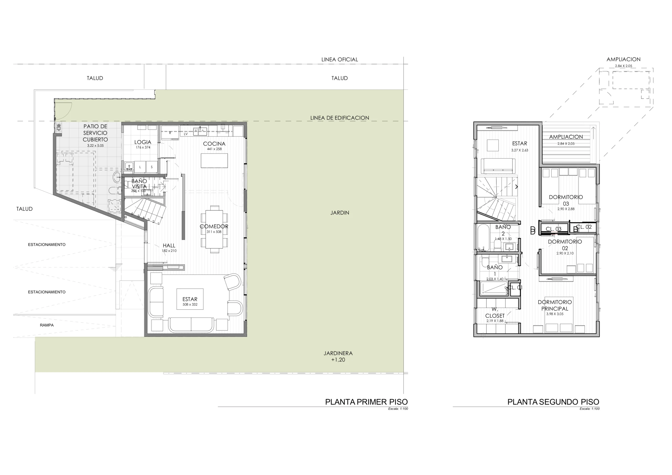
Planta tipo
Las casas de Pórtico Chamisero destacan por su distribución funcional y moderna. En el primer piso, la planta abierta integra cocina, comedor y living, generando mayor amplitud y conexión con el exterior.
Cuentan con un amplio patio de servicio, con opción de ampliación a dormitorio y baño de servicio, ideal para familias que buscan flexibilidad. Además, existe la posibilidad de incorporar un cuarto dormitorio en el segundo piso.
El dormitorio principal en suite incluye walking closet, aportando comodidad y un alto estándar de diseño en cada espacio.
